Zorgbedrijf Antwerpen Logo
  • thuisdiensten
  • dienstencentra
  • assistentiewoningen
  • woonzorgcentra
  • activiteiten
  • Lekker eten
  • Vacatures
  • Webwinkel De Schakel
  • Voor gezinnen
  • Voor studenten
  • Voor mantelzorgers
  • Voor zorgprofessionals
Contacteer ons
Mijn Zorgbedrijf Zorgbedrijfboeker
  • Vacatures
  • Webwinkel De Schakel
  • Voor gezinnen
  • Voor studenten
  • Voor mantelzorgers
  • Voor zorgprofessionals
Contacteer ons
Mijn Zorgbedrijf Zorgbedrijfboeker
Zorgbedrijf Antwerpen Logo
  • thuisdiensten
  • dienstencentra
  • assistentiewoningen
  • woonzorgcentra
  • activiteiten
  • Lekker eten
Startpagina / Assistentiewoningen / Louis Paul Boon

Assistentiewoningen  Louis Paul Boon
NIEUWBOUW

Louis Paul Boonstraat 23
2050 Antwerpen-Linkeroever

03 431 57 95 of stuur ons een e-mail
Vraag uw vervoer aan of kom met tram of bus
Kom naar een infosessie

Hier vindt u 29 flats van 57 tot 73 m2 groot, met een of twee slaapkamers. De woningen zijn gebouwd in 2013. Alle flats zijn volledig rolstoeltoegankelijk.

Deze serviceflats maken deel uit van de site Linkeroever. Bekijk ook het aanbod van serviceflats Emile Verhaeren, Carel Van Mander en Ernest Claes.

Type A1: Assistentiewoning met 1 slaapkamer, zonder terras

Comfortabel wonen in een levendige omgeving, met alles wat u nodig hebt in de buurt

Huurprijs: 1.028,27 euro tot 1.028,58 euro per maand (incl. servicekost) (dagprijs = 33,17 euro tot 33,18 euro)
Koopprijs: 143.000 euro + servicekost van 8,79 euro per dag

Meer weten

Type B1: Assistentiewoning met 1 slaapkamer met terras

Comfortabel wonen in een levendige omgeving, met alles wat u nodig hebt in de buurt

Huurprijs: Van 1.069,81 tot 1.110,11 euro per maand (incl. servicekost) (dagprijs = van 34,51 tot 35,81 euro)
Koopprijs: 148.000 tot 159.000 euro + servicekost van 8,79 euro per dag

Meer weten

Type D2: Assistentiewoning met 2 slaapkamers, zonder terras

Aangename, comfortabele woning op een centrale locatie in een levendige omgeving

Huurprijs: 1.152,27 euro per maand (incl. servicekost) (dagprijs = 37,17 euro)
Koopprijs: 174.000 euro + servicekost van 8,79 euro per dag

Meer weten

Type D3: Assistentiewoning met 2 slaapkamers, zonder terras

Aangename, comfortabele woning op een centrale locatie in een levendige omgeving

Huurprijs: 1.398,41 euro per maand (incl. servicekost) (dagprijs = 45,11 euro)
Koopprijs: 188.000 euro + servicekost van 8,79 euro per dag

Meer weten

Type E2: Assistentiewoning met 2 slaapkamers met terras

Aangename, comfortabele woning op een centrale locatie in een levendige omgeving

Huurprijs: Van 1.275,03 euro tot 1.315,95 euro per maand (incl. servicekost) (dagprijs = van 41,13 tot 42,45 euro)
Koopprijs: Van 178.000 tot 188.000 euro + servicekost van 8,79 euro per dag

Meer weten

Type A1: Assistentiewoning met 1 slaapkamer, zonder terras

grondplan GAW serviceflat Europark type - T A1
  • grondplan GAW serviceflat Europark type - T A1
Comfortabel wonen in een levendige omgeving, met alles wat u nodig hebt in de buurt
Aantal slaapkamers
1
Oppervlakte
> 50 m²
Huurprijs
1.028,27 euro tot 1.028,58 euro per maand (incl. servicekost) (dagprijs = 33,17 euro tot 33,18 euro)
Koopprijs
143.000 euro + servicekost van 8,79 euro per dag
Kostenvoorschot
50 euro per maand
Huurvoorschot
25 x dagprijs
Meer informatie
  • berging
  • fietsenberging
  • lift
  • noodoproepsysteem
  • geïnstalleerde keuken
  • elektrische kookplaat
  • ventilatiesysteem
  • inloopdouche
  • zonwering op sommige ramen
  • parlofoon
  • oplaadpunt voor elektrische fietsen
  • centrale verwarming op gas
  • plaats voor wasmachine en droogkast
  • plaats voor vaatwasser
Download de infofiche

Deze prijzen zijn indicatief en onderhevig aan indexatie. De datum van ondertekening van uw contract zal bepalend zijn voor de exacte huurprijs. Contacteer onze klantendienst voor de exacte kostprijs en meer informatie.

Type B1: Assistentiewoning met 1 slaapkamer met terras

grondplan GAW serviceflat Europark type - T B1
  • grondplan GAW serviceflat Europark type - T B1
Comfortabel wonen in een levendige omgeving, met alles wat u nodig hebt in de buurt
Aantal slaapkamers
1
Oppervlakte
> 50 m²
Terras
Aanwezig
Huurprijs
Van 1.069,81 tot 1.110,11 euro per maand (incl. servicekost) (dagprijs = van 34,51 tot 35,81 euro)
Koopprijs
148.000 tot 159.000 euro + servicekost van 8,79 euro per dag
Kostenvoorschot
50 euro per maand
Huurvoorschot
25 x dagprijs
Meer informatie
  • berging
  • fietsenberging
  • lift
  • noodoproepsysteem
  • geïnstalleerde keuken
  • elektrische kookplaat
  • ventilatiesysteem
  • inloopdouche
  • zonwering op sommige ramen
  • parlofoon
  • oplaadpunt voor elektrische fietsen
  • centrale verwarming op gas
  • plaats voor wasmachine en droogkast
  • plaats voor vaatwasser
Download de infofiche

Deze prijzen zijn indicatief en onderhevig aan indexatie. De datum van ondertekening van uw contract zal bepalend zijn voor de exacte huurprijs. Contacteer onze klantendienst voor de exacte kostprijs en meer informatie.

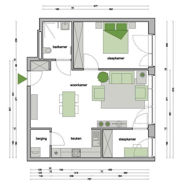
Type D2: Assistentiewoning met 2 slaapkamers, zonder terras

grondplan GAW serviceflat Europark type - T D2
  • grondplan GAW serviceflat Europark type - T D2
Aangename, comfortabele woning op een centrale locatie in een levendige omgeving
Aantal slaapkamers
2
Oppervlakte
> 60 m²
Huurprijs
1.152,27 euro per maand (incl. servicekost) (dagprijs = 37,17 euro)
Koopprijs
174.000 euro + servicekost van 8,79 euro per dag
Kostenvoorschot
50 euro per maand
Huurvoorschot
25 x dagprijs
Meer informatie
  • berging
  • fietsenberging
  • lift
  • noodoproepsysteem
  • geïnstalleerde keuken
  • elektrische kookplaat
  • ventilatiesysteem
  • inloopdouche
  • zonwering op sommige ramen
  • parlofoon
  • oplaadpunt voor elektrische fietsen
  • centrale verwarming op gas
  • plaats voor wasmachine en droogkast
  • plaats voor vaatwasser
Download de infofiche

Deze prijzen zijn indicatief en onderhevig aan indexatie. De datum van ondertekening van uw contract zal bepalend zijn voor de exacte huurprijs. Contacteer onze klantendienst voor de exacte kostprijs en meer informatie.

Type D3: Assistentiewoning met 2 slaapkamers, zonder terras

grondplan GAW serviceflat Europark type - T D3
  • grondplan GAW serviceflat Europark type - T D3
Aangename, comfortabele woning op een centrale locatie in een levendige omgeving
Aantal slaapkamers
2
Oppervlakte
> 70 m²
Huurprijs
1.398,41 euro per maand (incl. servicekost) (dagprijs = 45,11 euro)
Koopprijs
188.000 euro + servicekost van 8,79 euro per dag
Kostenvoorschot
50 euro per maand
Huurvoorschot
25 x dagprijs
Meer informatie
  • berging
  • fietsenberging
  • lift
  • noodoproepsysteem
  • geïnstalleerde keuken
  • elektrische kookplaat
  • ventilatiesysteem
  • inloopdouche
  • zonwering op sommige ramen
  • parlofoon
  • oplaadpunt voor elektrische fietsen
  • centrale verwarming op gas
  • plaats voor wasmachine en droogkast
  • plaats voor vaatwasser
Download de infofiche

Deze prijzen zijn indicatief en onderhevig aan indexatie. De datum van ondertekening van uw contract zal bepalend zijn voor de exacte huurprijs. Contacteer onze klantendienst voor de exacte kostprijs en meer informatie.

Type E2: Assistentiewoning met 2 slaapkamers met terras

grondplan GAW serviceflat Europark type - T E2
  • grondplan GAW serviceflat Europark type - T E2
Aangename, comfortabele woning op een centrale locatie in een levendige omgeving
Aantal slaapkamers
2
Oppervlakte
> 60 m²
Terras
Aanwezig
Huurprijs
Van 1.275,03 euro tot 1.315,95 euro per maand (incl. servicekost) (dagprijs = van 41,13 tot 42,45 euro)
Koopprijs
Van 178.000 tot 188.000 euro + servicekost van 8,79 euro per dag
Kostenvoorschot
50 euro per maand
Huurvoorschot
25 x dagprijs
Meer informatie
  • berging
  • fietsenberging
  • lift
  • noodoproepsysteem
  • geïnstalleerde keuken met dampkap
  • elektrische kookplaat
  • ventilatiesysteem
  • inloopdouche
  • zonwering op sommige ramen
  • parlofoon
  • oplaadpunt voor elektrische fietsen
  • centrale verwarming op gas
  • plaats voor wasmachine en droogkast
  • plaats voor vaatwasser
Download de infofiche

Deze prijzen zijn indicatief en onderhevig aan indexatie. De datum van ondertekening van uw contract zal bepalend zijn voor de exacte huurprijs. Contacteer onze klantendienst voor de exacte kostprijs en meer informatie.

Contacteer ons

Delen

Onze diensten

  • Thuisdiensten
  • Dienstencentra
  • Assistentiewoningen
  • Woonzorgcentra
  • Financieel comfort
  • Mijn Zorgbedrijf

Onze innovaties

  • Mijn Boek
  • Webwinkel De Schakel

Over Zorgbedrijf Antwerpen

  • Bedrijfsprofiel
  • Vacatures
  • Vrijwilligers
  • Leveranciers
  • Jeugdzorg
  • Partners
  • Algemene voorwaarden
  • Richtlijnen voor het gebruik van sociale media

Snelkoppelingen

  • Zorgbedrijf Vlaanderen

Volg ons op

Zorgbedrijf Antwerpen
© 2025 Zorgbedrijf Antwerpen - Vlaanderen - Brasschaat Privacy beleid
Naar boven